Private Treaty
OFFERS INVITED
Two-Storey Set of Modular Site Office & Welfare Cabins
By order of the Administrators of Corinthian Plant Ltd
Location:
Hayle, Cornwall
Offers Invited: Immediately
Equipment to include: (Subject to availability)
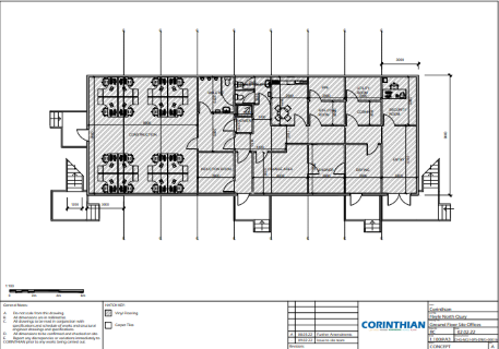
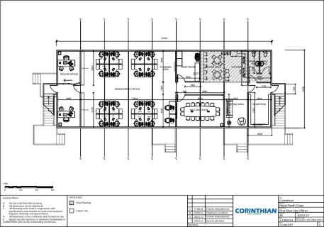
One x18 cabin, two-storey modular site complex.
- Ground floor featuring open and enclosed office space, changing rooms, canteen, & welfare.
- First floor featuring; open plan & enclosed offices, board rooms, & welfare.
Please note, no furniture shown in the images will be included in this sale. The cabins will be cleared prior to collection.
To view the floor plans, please click 'Further Information'. For further details & images, please contact Rob Fewins on Rfewins@lsh.co.uk or 07938 738196.
Acceptance of final highest bids is subject to client approval
All assets are sold as seen, without warranty and remain the property of the vendor until cleared funds are received in full - Viewing is strongly recommended
For full details of viewing, clearance payment, export terms and specific arrangements refer to Notice to Purchasers
All assets are sold in accordance with our Standard Terms and Conditions of Sale
Lambert Smith Hampton is regulated under the Money Laundering Regulations 2017 and will not accept transactions in cash which exceed £7,000 under any circumstance
All assets are sold as seen, without warranty and remain the property of the vendor until cleared funds are received in full - Viewing is strongly recommended
For full details of viewing, clearance payment, export terms and specific arrangements refer to Notice to Purchasers
All assets are sold in accordance with our Standard Terms and Conditions of Sale
Lambert Smith Hampton is regulated under the Money Laundering Regulations 2017 and will not accept transactions in cash which exceed £7,000 under any circumstance
